Возможный план жилого здания с мансардой
Первый этаж жилого дома с мансардой, так же как и первый этаж одноэтажного здания без мансарды, начинается с парадной зоны.

Однако в сравнении с вышеуказанным вариантом, дом с мансардой отличается еще и наличием холла, который объединен в едином пространстве с обеденной и гостиной зонами. Данные зоны оснащаются специальными перегородками.

В гостиной комнате имеется лестница для подъема на мансарду, в то время как территория холла имеет выходы в котельную и санузел.






Ванная комната является совмещенной, то есть в ней находятся душевая, раковина и унитаз.


Как можно заметить по фотографии дома 60 кв. м. с мансардой, данный вариант планировки не только привлекательно смотрится, но и соответствует требованиям, предназначенным для оптимального проживания в любое время года.

Из каких материалов можно сделать одноэтажный частный дом
При выборе плана одноэтажного дома нужно решить ещё одну задачу − определиться с материалом. Главный вопрос – какие материалы сейчас используются в строительстве, и все основные их достоинства и недостатки.
Проекты домов из бруса
Брус – это обработанные брёвна, для строительства используют материалы полуовального, квадратного и прямоугольного сечения. Каждый из них обладает своими достоинствами и недостатками, например, брус полуовального сечения–косой срез позволяет лучшему стеканию дождевой воды.
Основные его преимущества:
- самый экологичный материал;
- стоимость намного ниже, чем у дома, построенного из кирпича;
- невысокая теплопроводность, дома из бруса очень тёплые;
- природная красота дерева – строения не нуждаются в дополнительной внешней или внутренней отделке;
- можно ставить на лёгкие фундаменты;
- долговечны.
Негативных особенностей брус практически не имеет, но те, что есть, достаточно серьёзны:
- дерево хорошо горит;
- подвержено гниению и поражению грибком, для предотвращения этого процесса необходимо периодически обрабатывать специальными составами;
- усадка может продлиться до пяти лет.
Одноэтажный дом из бруса с открытой террасой
Проекты домов из пеноблоков
Внешний вид пеноблоков не так красив, как дерево, но это компенсируется его достоинствами:
- скорость строительства в 9 раз выше, чем кирпичного;
- работы можно выполнять самостоятельно;
- точность геометрических параметров позволяет возводить ровные стены;
- низкая практически 100% теплопроводность;
- 100% огнеупорность;
- не токсичен;
- благодаря пористой структуре хорошо вентилируется, на него не влияют температурные скачки.
Материал обладает и некоторыми недостатками:
- с годами могут появиться трещины;
- до строительства желательно хранить материал на складе;
- нужен более мощный фундамент.
ФОТО: z500proekty.ru/projekt/z349.html Одноэтажный дом из пеноблоков в английском стиле
Проекты домов из кирпича
Дома, построенные из кирпича, – это массивные строения, которые имеют красивый внешний вид, кроме того, они прекрасно противостоят природным явлениям. К основным достоинствам материала относятся:
- большой срок эксплуатации;
- отличная морозостойкость;
- точные геометрические параметры;
- хорошая прочность;
- красивый внешний вид.
Однако материал имеет ряд существенных недостатков:
- невысокая влагостойкость. Это можно наблюдать, например, как во время дождя темнеет силикатный кирпич, именно поэтому его не рекомендуется использовать в районах с повышенной влажностью и для строительства подвальных помещений;
- повышенная теплопроводность – требуется дополнительное утепление стен;
- большой вес, требуется возведение более крепкого фундамента;
- стоимость материала довольно высокая.
Индивидуальный проект одноэтажного дома из кирпича
Проекты домов на металлическом и деревянном каркасе
Каркасное строительство не привязано к конкретной климатической зоне, основное условие для него – комфорт рабочих во время возведения. Благодаря современным технологиям можно быстро возвести каркас, стоимость которого значительно ниже, чем у кирпича, пеноблоков или бруса.
К основным достоинствам относятся:
- высокая прочность;
- большой срок эксплуатации;
- возведение конструкции за рекордно короткие сроки;
- устойчивы к различным погодным условиям;
- низкие теплопотери;
- экологичность;
- сейсмоустойчивость;
- безусадочное строительство;
- можно выбрать любой архитектурный проект.
Технология также имеет ряд минусов:
- во время пожара оцинковка теряет свои характеристики, строение сворачивает, словно по спирали, она перекашивается, брус обугливается;
- нельзя применять тяжёлые строительные материалы;
- металлический каркас хорошо проводит электрический ток.
Металлокаркасная схема строительства
Варианты планировки
Наличие мансарды позволяет вынести наверх часть жилых помещений – а дальше все зависит от твоих нужд. Это может быть спальня и детская, гостевая комната и гостевой санузел, творческая мастерская или рабочий кабинет, комната для отдыха или домашняя библиотека. А вот функциональные помещения, вроде кухни, гостиной, столовой и основного санузла традиционно оставляют внизу для удобства.
Технические помещения тоже лучше снести вниз или даже в подвал – например, бойлерную или кладовку. А еще к дому с мансардой легко пристроить гараж или сауну. Это можно эффектно обыграть кровлей необычной конфигурации – нужно только грамотно подобрать изоляцию и материалы.

Наливные 3D-полы: красивые идеи дизайна (60 фото)

Двухэтажные дачные дома: варианты проектов
Естественно, что строительство двухэтажного дома или дачи обойдется дороже, где-то процентов на 60. Это связано с тем, что фундамент-то нужен все равно, как и крыша, независимо от количества этажей. Единственная проблема – это техническая сторона, поскольку проводить работы на высоте второго этажа намного опаснее, а тем более на крыше, которая будет находиться уже на уровне третьего этажа.
Не смотря на некоторые проблемы, многие отдают предпочтение двухэтажным постройкам. Подкупает тот факт, что при недостатке полезной площади на участке, можно занять в 2 раза меньше места, построив домик в 2 этажа, сохранив его функциональность.
Двухэтажный дом с пристроенным гаражом
Проект, который представлен выше, рассчитан на применение газобетонных или керамических блоков. Если участок вытянут в длину, то этот проект наиболее практичный. Особенно удобно расположен пристроенный гараж, из которого сразу же можно попасть в дом. Как уже было отмечено выше, этот проект экономит полезное пространство участка, которого всегда не хватает.
Этот вариант планировки предполагает размещение с тыльной стороны постройки просторной террасы. Ее площадь не входит в площадь дома. Этот дом не похож на другие дома, что удалось достичь за счет интересного дизайна. Особенно привлекательным является огромное окно, занимающее полтора этажа, гараж в форме куба, а также навес перед домом. Эти элементы не оказывают решающего значения на стоимость постройки, делая ее уникальной в своем роде.
Здесь гараж пристроен с боку дома
Выше представлен еще один проект, который может заинтересовать владельцев дачных участков, имеющих форму квадрата или больше широких, нежели узких. Основа проекта – это дом, площадью порядка 100 метров квадратных. Здесь гараж располагается сбоку двухэтажного домика. Уникальный вид получен за счет высоких окон второго этажа, а также подбор отделочного материала, в светло-бежевых и коричневых тонах. Этот проект можно считать не менее интересным.
У этого дома балкон по периметру второго этажа
Интересным может оказаться еще один вариант двухэтажного дома для дачи, представленный выше. Нестандартное решение связано с балконом, который расположен по периметру всего здания. Открытая обширная терраса расположена с тыльной стороны постройки. Крыша сложная, четырехскатная, что делает выполнение проекта более дорогим, но зато проект в целом уникальный.
Тонкости планировки
В плане дачного дома может быть всего одна комната, да и та объединена с кухней. Есть одноэтажные домики с двумя и тремя комнатами, но это редкость. В основном дачные постройки малогабаритные. Но если жилище обустроено мансардой или террасой, или, к примеру, у вас на даче финский домик – это огромные дополнительные возможности.
Оптимальная планировка дачного домика предусматривает следующие моменты:
- если комната одна или центральная комната самая большая в доме, а на даче одновременно будет пребывать большое количество людей, логично отдать ее под гостиную-столовую;
- функциональная планировка – это разделение пространства на зоны, чтобы даже на маленькой территории каждый мог заняться своим делом;
- на втором этаже обычно спят, и если у вас дилемма – поставить там узкое спальное место, но сохранить возможность комфортного хождения по комнате или поставить широкую кровать, но ходить почти негде, второй вариант может быть более удачным (отдых должен быть удобным).
Проект «Алисия»
Дом отлично подойдет для постоянного проживания семьи с детьми. Среди главных особенностей проекта:
- большая гостиная с камином и прямым выходом на террасу, где поместится пара шезлонгов или обеденный стол;
- кухня примыкает к гостиной, поэтому организовать обед на природе будет несложно;
- рядом с кухней предусмотрено подсобное помещение, где можно поставить котел отопления и хранить кухонную технику или бакалею;
- два санузла, по одному на каждый этаж;
- на мансарде расположены три равноценные по площади спальни с большой площадью остекления;
- общая площадь 96,4 кв.м.
Все детали по данному проекту может предоставить архитектурная компания TMV, специалисты которой также разрабатывают индивидуальные проекты с мансардой – это решение на тот случай, если не один из готовых вариантов вас не устраивает. Также в компании можно заказать строительство дома.
Как расположить помещения
Ещё один крайне важный пункт, который нужно учитывать, составляя план будущей дачи, — это расположение помещений. Казалось бы, это очень легко, особенно если вся дача состоит всего из двух комнат. Но все же рассказать об этом не будет лишним.
Некоторые владельцы дач предпочитают иметь в домике не два помещения, а три. Кроме кухни и спальни, они помещают сюда ещё и тамбур. Что ж, прекрасное решение. Здесь можно не только оставлять грязную обувь и верхнюю одежду, но и использовать тамбур, чтобы снизить теплопотери или же, наоборот, чрезмерный нагрев помещения. Если вы решили не использовать тамбур, то входную дверь лучше всего расположить в кухне. В этом случае спальня не будет терять тепло днем, когда вы будете заходить и выходить из дома.

Пример расположения помещений на плане загородного дома
Также можно легко проветривать кухню, когда там будет особенно жарко, например, при готовке обеда или варке варенья. Конечно, нелишним будет установить противомоскитную сетку, которая защитит вас от комаров и ос, часто слетающихся на сладкий аромат.
Планировка дома с пристроенным гаражом
Как правило, гаражную пристройку делают на уровне земли или на уровне первого этажа. Такой вариант не предусматривает общей кровли гаража с основным зданием, поэтому подходит как для одноэтажных, так и для двухэтажных домов.
Одноэтажный дом с пристроенным гаражом
Такой вариант позволяет обзавестись автогаражом, пристроив его к уже стоящему зданию. Так как отталкиваться приходится от существующей планировки, бокс нередко соседствует с жилыми комнатами. Поэтому необходимо серьезно подойти к вентиляции и звукоизоляции.
Одноэтажный дом с пристройкойИсточник moskva.dom-oi.ru
Двухэтажный дом с гаражной пристройкой
Дом в 2 этажа с гаражом, возведенным по типу пристройки – практичный и удобный вариант, позволяющий свободно планировать пространство второго этажа, независимо от расположения автомобиля. Пристраивая техническое крыло к двухэтажному зданию, можно не только получить место для хранения машины, но и увеличить площадь второго этажа. Если кровлю гаража сделать плоской и пригодной для эксплуатации, то из помещения второго этажа на нее можно сделать выход, тем самым дополнив дом просторной террасой.
План 1 этажаИсточник dniprobud.com.ua
2 этаж. Выход на террасу из спальниИсточник dniprobud.com.ua
Терраса, устроенная над гаражным помещениемИсточник просто-дом.com
Примеры домов с гаражом можно просмотреть в видео:
Оборудовать дом совмещенным гаражом возможно на этапе эксплуатации, если площадь участка позволяет это сделать. Однако, оптимально расположить гаражное помещение возможно лишь на стадии проектирования. При этом будут учтены все нормы, а также пожелания и комфорт членов семьи. Поэтому, чтобы избежать переделок в будущем, нужно серьезно отнестись к процессу планировки удобного и красивого дома с гаражом.
Фундамент
Если не планируется возведение капитального строения, то строительство дачных домов выполняется по упрощенной методике возведения фундамента, которая включает в себя следующие этапы:
- разметка расположения ленточного основания на выбранной местности;
- выкапывание неглубоких траншей под основание;
- по окружности траншей выкладывается опалубка;
- затем закладываются в арматурные элементы;
- подготовленная конструкция заливается качественным бетоном.
Вам будет интересно: Популярные проекты двухэтажных домов 10 на 10: принципы грамотной планировки

При строительстве садового домика используют и свайный фундамент. Для построения одноэтажного здания можно подготовить винтовой или столбчатый фундамент. Не нужно проводить земляные работы – это неоспоримое достоинство таких построек.
Особенности планировки
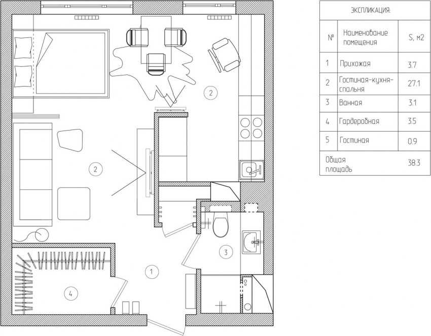
В таком доме есть все необходимые помещения, чтобы расположиться с комфортом.
Небольшая прихожая вместит шкаф для верхней одежды, полку для обуви и банкетку, чтобы присесть и переобуться.
В гостиной, где семья будет проводить вечернее время, есть пространство для зоны отдыха с мягкой мебелью и телевизором. При желании найдётся место и для камина.
Кухня-ниша может быть частью общей комнаты, но может быть выделена и в самостоятельное помещение. В доме разместятся три удобные спальни, одна из них – для родителей, а две других – для детей.
Одноэтажный дом площадью 100 кв.м
Одноэтажный дом площадью 100 кв.м
Одноэтажный дом площадью 100 кв.м
Если ребёнок в семье один, другую комнату легко переоборудовать в кабинет. При необходимости дополнительную площадь можно отвести под хозяйственные помещения: бойлерную, кладовую, постирочную. Для удобства имеются два санузла: туалет и ванная комната.
С верандой и террасой
При выборе планировки дачного дома часто стараются найти проект с верандой или террасой. Подобная крытая площадка хороша не только для отдыха или трапез на открытом воздухе. В дождливый или жаркий день под навесом можно провернуть немало дел, которые из-за большого количества мусора в помещениях не сделаешь.
Что может быть приятнее, чем отдых на открытом воздухе
На общем фундаменте
Проекты дачных домов с верандой есть небольшой площади: самые маленькие имеют размеры 6*4 метра, причем веранда занимает 2 метра по длинной стороне, а собственно дом — 4*4 метра или 16 квадратных метров (с учетом толщины стен и того меньше).
Проект дачного дома 6*4 с верандой и санузлом
Представленный выше проект предусматривает зимнее использование дачи. Для сохранения тепла в домике, есть вход через тамбур. Вход через веранду может использоваться в летнее время. Хорош он и тем, что есть в нем санузел — небольшая душевая кабинка, с умывальников и унитазом. Если канализации на даче нет, можно рассмотреть вариант биотуалета.
Еще один вариант — одна комната, в которой отведено место под несколько кухонных шкафчиков и плиту, стоит небольшой обеденный стол и есть спальное место. Такая планировка идеальна для проживания одного человека. Неплохо в ней себя будут чувствовать двое. В данном варианте санузла нет, так что придется строить туалет отдельно.
Проект маленького дачного дома с верандой под общей крышей
Планировка дачного дома маленькой площади (до 40 метров) совсем проста: обычно это две комнаты, первая из которых используется как кухня и столовая одновременно. Чаще всего она является проходной. Вторая комната жилая. Более-менее комфортно разместить тут можно два спальных места. Так что проекты дачных домов с мансардой 6*4 метра рассчитаны на проживание 1-2 человек.
Проект дачного дома с санузлом и открытой террасой под односкатной крышей
Если бюджет строительства сильно ограничен, рассмотреть проекты дачных домов с односкатной крышей. Они непривычны для нашей станы, но стоимость кровли при небольшой площади намного меньше. Только надо выбрать правильный угол уклона кровли (с учетом величины снежного покрова).
Дачный дом с зарытой зимней верандой 8*8 метров, проект с планировкой
Дачный дом средних размеров представлен на фото выше. Проект интересен тем, что веранда тут изначально «зимняя», застекленная. Большинство обладателей открытых веранд приходят к необходимости ее застеклить, а для приятного времяпровождения на воздухе построить беседку. В данном проекте веранда является продолжением гостиной, но тут может быть установлена перегородка. В общем и целом, удобный и комфортный дом с традиционной планировкой, все комнаты отдельные, есть санузел, выгороженный коридор. Все условия для круглогодичного проживания.
На отдельном фундаменте
Обратите внимание, что приведенные выше проекты дачных домов с верандой имеют общий фундамент. Это надежно, так как даже при весеннем пучении почвы подвижек не будет
Но затраты на фундамент получаются значительные. Потому обоснован такой подход на сложных грунтах, склонных к пучению. В на нормальных грунтах можно можно делать веранду на отдельном, несвязной и облегченном (обычно — столбчатом или свайном) фундаменте. Один такой проект представлен ниже.
План дачного дома 4*8 с пристроенной верандой
Вообще, веранду можно пристроить к любой постройке. Ее можно закладывать на этапе проектирования, а можно пристроить после (как бывает очень часто).
Небольшой дачный дом 6*4,5 с верандой на отдельном фундаменте
Веранда может занимать полностью одну из сторон дома, может охватывать два или даже три его стороны. Но есть варианты и с небольшой открытой площадкой (как на фото выше). Фундамент в этом случае может быть отдельный, но большой экономии не будет. Например, в приведенном выше проекте «выиграли» лишь 1,1 метра «основного фундамента.
Одноэтажный дом 7*7,5 с пристроенной террасой
Мы настолько привыкли к комфорту, что даже на даче не желаем иметь «удобства во дворе». Для многих основным критерием выбора является наличие санузла. Даже необходимость оборудования индивидуальной канализации их не пугает. Не все проекты дачных домов маленькой площади могут похвастаться таким «излишеством», но в некоторых санузел (туалет и душ) присутствует.
С баней
Для многих дача ассоциируется с баней. Баню, конечно, можно построить отдельно, но это долго и дорого. В дачном доме средних размеров вполне можно отвести помещение под парилку. Ее обычно делают со входом из ванной/санузла, так как водные процедуры необходимы. Для истинных парильщиков рядом еще должен быть выход на улицу: чтобы можно было быстро охладиться в речке или уличном бассейне.

Проект дачного дома с баней/сауной в скандинавском стиле
Минимальные размеры парилки — 2*2 метра, оптимальные — 3*3 Такие помещения можно вписать даже в дома небольшой площади, но при этом количество жилой площади уменьшится. Если комнат все-таки должно быть достаточно, можно рассмотреть вариант с мансардным этажом. Один из таких примеров на фото ниже.

Проект дачного дома с баней и мансардой
Обратите внимание на планировку. Первое, на чем стоит акцентировать внимание: печка установлена так, что топится она из соседнего помещения
В данном случае это комната отдыха. Вариант не слишком хорош, так как вход находится далеко. Носить дрова придется через комнату, что неудобно и, обычно, чревато большим количеством мусора.
Еще один недостаток: в приведенном варианте нет кухни. Для дачной жизни это солидный недостаток. Кухонный уголок можно организовать в большой комнате, на спальни разместить исключительно наверху. Еще вариант планировки — сделать кухню в нынешней «топочной/комнате отдыха». Отдыхать же удобнее в большом помещении. После принятия душа туда заходить удобно.
Перепланировка. Причины и действия
Независимо от того какой вид жилья намерен приобрести будущий собственник, в будущем его возможно заинтересует такая идея как перепланировка в квартире.


Из того что ни в коем случае нельзя делать при перепланировке, выделяют следующее:
- запрещается сносить несущие стены;
- проводить работы, которые затруднят доступ к инженерным коммуникациям (водопровод, отопление, канализация).






Как правило, основная цель перепланировки добиться большей комфортности. Исходя из этого выбираются различные варианты дизайна. Это может быть объединение двух помещений (например, гостиной и кухни) с проведением визуального зонирования. Расширение внутренних дверных проёмов, устройство арок в ненесущих стенах.

Чтобы выбрать подходящий вариант внутреннего устройства квартиры, большинству собственников требуется посторонняя помощь. Оказать её могут профессиональные дизайнеры. Однако нанять такого специалиста спешат не все.

Более доступным вариантом для большинства является подборка фото планировки квартиры в различных каталогах, выложенных в сети интернета.

Проекты с мансардой
Довольно часто приходит в голову мысль построить дом с мансардой. Расходы при этом, хотя и увеличиваются, но незначительно, поскольку второй этаж представляет не что иное, как видоизмененную кровлю. Если мансарду планируется эксплуатировать круглогодично, то эта разница в сумме может оказаться совсем неощутимой. При этом необходимо учитывать тот факт, что мансардный этаж требует такого же утепления, как и нижний, что существенно увеличивает расходы на строительство. Кроме этого, значительно увеличиваются расходы на отопление мансардного этажа.
Дом с мансандрой
Мансарды под двускатными крышами
Дачный дом с летней мансардой обойдется дешевле, но в особо жаркие дни без теплоизоляции на втором этаже будет неимоверно жарко. При этом потребуется не столь серьезный слой теплоизоляции, как для условий зимнего проживания.
Дом с верандой и мансандрой
Представленные проекты дачных домиков предназначены исключительно для сезонного проживания, поскольку здесь имеются исключительно жилые комнаты. Кухонный уголок, как правило, располагается на нижнем этаже.
домик на две жилые комнаты с мансандрой
Ниже можно увидеть план небольшого домика для дачи, площадью около 25 метров квадратных, с отдельной кухней. При этом, крыльца на плане нет, и оно пристроено уже потом.
Домик с мансандрой и кухней
Все эти домики спроектированы в виде каркасных построек, но если незначительно изменить подобные проекты, то их можно строить из любого строительного материала. Единственное, что придется пересмотреть – это тип фундамента, с учетом толщины стен и увеличенной нагрузки на фундамент.
Домик с крытой верандой и мансандрой
Очень просто превратить крытую веранду в открытую, хотя многие изъявляют совсем противоположное желание. Пристроив открытую веранду, стены выстраивают на половину высоты и остекляют, смонтировав одинарные рамы. Если распахнуть все окна, то не проблема подышать свежим воздухом.
При этом, на веранде допустимо организовать либо кухню, либо летнюю столовую.
Способы увеличения площади мансардного этажа
Практически все проекты домов для дач с мансардными этажами рассчитаны под двускатную крышу. Это неудивительно, поскольку подобная конструкция не позволяет на крыше задерживаться снегу. К тому же, стропильная система довольно простая, а также функциональная, поскольку позволяет организовать, хотя и небольшую, но полноценную комнату на втором этаже. При этом по краям, а также в верхней части теряется достаточно полезного пространства, хотя здесь допустимо организовать шкафчики для хранения различных вещей, в основном сезонного предназначения.
Двускатная крыша уменьшает полезную площадь
Если сделать кровлю ломаной, то таким образом можно увеличить полезное пространство. При этом нужно хорошо подумать, поскольку сложная кровля стоит значительно дороже, а полезной площади добавится совсем немного.
Увеличения пространства за счет ломаной крыши
Увеличить площадь мансардного этажа возможно еще одним способом, который сводится к тому, что стены возводят выше второго этажа. Такой способ называется возвести стены в «полтора этажа». Это тоже неплохой вариант, тем более что он пригоден для домов с круглогодичным проживанием. В таком случае конструкция крыши может быть любой, но сложная крыша «ломаная» дает больший эффект.
Пример полуторного этажа
Выбирая проект дома с мансардой, когда не планируется частое, а тем более круглогодичное посещение, лучше отдать предпочтение холодной мансарде, делая перекрытие утепленным. Желательно, чтобы второй этаж на зиму плотно закрывался, иначе все тепло будет уходить с первого этажа, как в трубу, а разогревать два этажа зимой просто ни к чему, тем более что на это уйдет много топлива, а значит средств. Как правило, в зимний период дача посещается редко, да и меньшим количеством людей.
Крыша
Чтобы построить садовый дом качественно, соблюдая все необходимые требования, важно заранее позаботиться о проектировании крыши. Элемент постройки достаточно сложен, так как требует немало работы
Перед тем, как начинать монтирование крыши, необходимо соорудить стропила. Варианты простых решений постройки крыши включают в себя установку односкатной кровли или плоской крыши. Профессиональные строители определяют плоские и односкатные крыши предпочтительным вариантом для современного коттеджа. К примеру, снеговая нагрузка у таких крыш гораздо крепче, чем у “скворечников”.

После выбора крыши на поверхность устанавливается обрешетка и основание покрывается предпочитаемыми кровельными материалами.




























